Inici Els municipis Paisatges naturals Cultura i lleure Gastronomia Edificis històrics i religiosos Recomanacions

Detall del claustre de Sant Quirze de Colera

Detall del claustre de Sant Quirze de Colera - (Ampliar)

Torre de defensa del monestir de Sant Quirze de Colera

Torre de defensa del monestir de Sant Quirze de Colera - (Ampliar)

Monestir de Sant Quirze de Colera

Monestir de Sant Quirze de Colera - (Ampliar)

Escut dels comtes d'Empúries

Escut dels comtes d'Empúries

Sant Quirze de Colera. 1987

Sant Quirze de Colera. 1987. AUtor desconegut. CRDI - Ajuntament de Girona - (Ampliar)

Moneda de Carles el Calb (823-877)

Moneda de Carles el Calb (823-877). Viquipèdia - (Ampliar)

Guislabert II de Rosselló (?-1102)

Guislabert II de Rosselló (?-1102). Viquipèdia

10/04/1125. Testament d'Arnau de Cabanes. Deixa  almoines a Sant Pere de Rodes, a l'Hospital, al Temple, i a Sant Quirze de Colera, entre altres

10/04/1125. Testament d'Arnau de Cabanes. Deixa almoines a Sant Pere de Rodes, a l'Hospital, al Temple, i a Sant Quirze de Colera, entre altres. Biblioteca de Catalunya - (Ampliar)

El rei de França Felip III l'Ardit (1245-1285)

El rei de França Felip III l'Ardit (1245-1285). Viquipèdia

Nau lateral de l'església

Nau lateral de l'església. Font: monestirs.cat gentilesa de l'autor - (Ampliar)

Sant Quirze de Colera. 1989

Sant Quirze de Colera. 1989. Joan Segur. CRDI - Ajuntament de Girona - (Ampliar)

Felip II (1527-1598)

Felip II (1527-1598). Viquipèdia - (Ampliar)

Capçalera de l'església de Sant Quirze de Colera

Capçalera de l'església de Sant Quirze de Colera - (Ampliar)

Monjo benedictí

Monjo benedictí. Il·lustració de l'"Histoire des ordres monastiques religieux et militaires". Bibliothèque nationale de France - (Ampliar)

Monestir de Sant Quirze de Colera

Monestir de Sant Quirze de Colera - (Ampliar)

Relleu en un mur de Sant Quirze de Colera. 1922-1931

Relleu en un mur de Sant Quirze de Colera. 1922-1931. Arxiu Fotogràfic Centre Excursionista de Catalunya - (Ampliar)

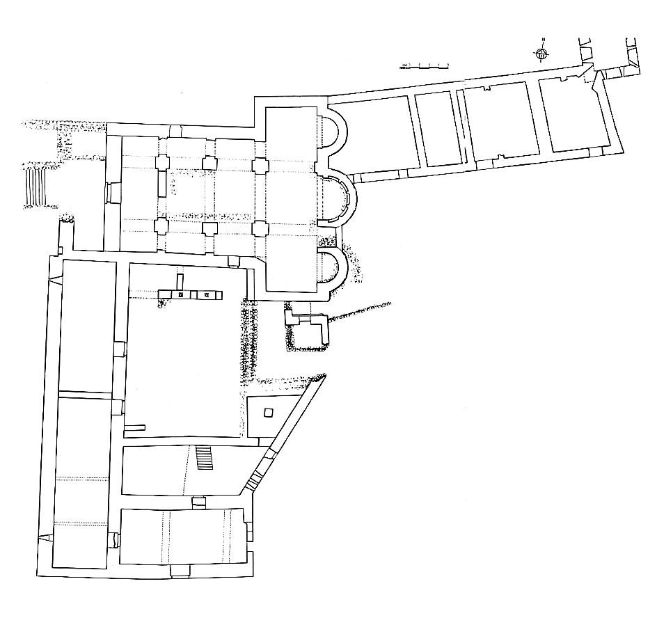
Planta general del monestir, amb la necròpoli i els vestigis de l’absis preromànic de l’església primitiva

Planta general del monestir, amb la necròpoli i els vestigis de l’absis preromànic de l’església primitiva. Patrimoni Arquitectònic. Generalitat de Catalunya - (Ampliar)

Monestir de Sant Quirze de Colera

Monestir de Sant Quirze de Colera - (Ampliar)

L`pida sepulcral a l'església

L`pida sepulcral a l'església. Font: monestirs.cat gentilesa de l'autor - (Ampliar)

Façana del monestir de Sant Quirze de Colera

Façana del monestir de Sant Quirze de Colera - (Ampliar)

Nau central del monestir de Sant Quirze de Colera

Nau central del monestir de Sant Quirze de Colera. Viquipèdia - (Ampliar)

Transepte i restes de l'església primitiva del monestir de Sant Quirze de Colera

Transepte i restes de l'església primitiva del monestir de Sant Quirze de Colera. Viquipèdia - (Ampliar)

Nau del monestir de Sant Quirze de Colera

Nau del monestir de Sant Quirze de Colera. Viquipèdia - (Ampliar)

Absis de l'església de Santa Maria de Colera

Absis de l'església de Santa Maria de Colera - (Ampliar)

Abaciologi de Sant Quize de Colera

Abaciologi de Sant Quize de Colera - (Ampliar)


Localització
42º 24' 58" N
3º 01' 42" E


Rabós. Monestir de Sant Quirze de Colera.

És un complex monacal benedictí de l'antic comtat d'Empúries, situat a l'actual terme municipal de Rabós, un conjunt arquitectònic format per l'església de Sant Quirze, diverses dependències monàstiques organitzades al voltant del pati del claustre, una torre de defensa i restes d'un pany de muralla, l'església de Santa Maria i les restes de l'antic hospital. Està situat a uns cinc quilòmetres de distància del poble de Rabós i prop del camí vell al coll de Banyuls. És una obra declarada bé cultural d'interès nacional.

Conjunt monumental de Sant Quirze de Colera

Conjunt monumental de Sant Quirze de Colera - (Ampliar)

Història del monestir. Els orígens de San Quirze de Colera són difícils de precisar degut a la problemàtica d'un document que molts historiadors consideren una falsificació del segle XIII, en el que s'assenyala que la fundació va ser avalada ja a inicis del segle IX per Carlemany. S'hi esmenta que dos germans, Libenci i Assenari juntament amb els seus familiars, fundaren un monestir tant per fer vida cenobítica com per poder treballar les terres. Després d'aprisiar aquestes terres varen anar a la cort de Carlemany per obtenir un precepte de possessió (1).
L’any 931 els executors testamentaris del comte Gausbert d’Empúries-Rosselló lliuraren al cenobi uns alous importants que el comte havia llegat, que comprenien algunes valls de la serra de l’Albera i arribava fins a la mar: “quantum ipse habebat in Clerzellos, seu in valle Frexano et in valle Collera”.
La consagració de l'església del monestir a Sant Quirze, Sant Andreu i Sant Benet no va ser fins a l'any 935, quan el bisbe Guiu o Guigó de Girona, a petició de l'abat Manuel, ho va autoritzar. En el text que recull la consagració també s'esmenta que l'església havia estat reedificada enderrocant parts inútils fins als fonaments i mantenint les parts aprofitables, es parla dels ornaments reparats, dels canals i de les construccions útils reformades, de les campanes i les obres refetes. Cal esmentar que sota el protagonisme de l'abat Manuel, el cenobi va viure un període d'engrandiment i prosperitat. Encara de més significació pel futur del monestir varen ser els importants alous que li van llegar els comtes d'Empúries i Rosselló, Gausbert I (?-931) i el seu fill Gausfred I (900-991) durant gran part del segle X. El mateix comte l’any 977 cedí al cenobi un alou a l’Albera, situat al coll del Torn, a les valls des Leocarcari.

Febrer 1211. Arbitratge de l'abat Berenguer, de Sant Pere de Rodes, en la causa entre l'abat Bernat de Santa Maria de Vilabertran i Berenguer, abat de Sant Quirze de Colera, sobre una possessió

Febrer 1211. Arbitratge de l'abat Berenguer, de Sant Pere de Rodes, en la causa entre l'abat Bernat de Santa Maria de Vilabertran i Berenguer, abat de Sant Quirze de Colera, sobre una possessió. Biblioteca de Catalunya - (Ampliar)

Al testament fet pel comte Gausfred I l'any 989 consta la donació d'uns alous que completaven el territori a les terres properes de l’Albera: “et ad domum Sancti Chirici cenobii, ipsa mea valle que dicunt Fraxano, qui est inter loca et ipsas portas et ipsa revoria de Luba et ipsas vineas qui sunt inter collo de Spilius (2) et Fraxano, quod Agudinus plantavit cum fratribus suis”. Amb aquestes possessions l'abadia consolidà uns forts dominis jurisdiccionals al llarg d'un ampli territori que s'estenia per l'Albera i que comprenia, ja en aquest moment, el tram de litoral que, aproximadament, correspon al que avui pertany als municipis de Portbou i Colera.
L’any 1012 se celebrà un judici públic davant les portes de l’església de Sant Martí de Peralada, on es va dictar sentència a favor dels interessos de l’abadia de Sant Quirze, representats pel seu abat Amblard, i contra el vescomte Dalmau de Rocabertí. El vescomte hagué de reconèixer que havia ocupat sense dret el vilar d’Abellars (Abiliarios), les restes del qual són a l’actual municipi de Cantallops. Es veié obligat a restituir-lo a l’abat Amblard que havia acudit al comte Hug I d’Empúries (965-1040) en petició de justícia. De l’abat Amblard hi ha una altra notícia de l’any 1019, quan figura en l’acta fundacional o de reforma de la canònica de la seu de Girona.

Façana de Sant Quirze de Colera

Façana de Sant Quirze de Colera - (Ampliar)

Es documenta en una escriptura datable entre el 1078 i el 1091 diversos alous propis del monestir amb els noms dels cavallers que els tenien en feu. Les molt nombroses propietats que hi són anomenades s’estenien majoritàriament pel vessant empordanès de l’Albera i les terres properes del comtat de Peralada; n’hi ha també algunes al vessant de tramuntana de l’Albera, al comtat de Rosselló, especialment als termes actuals d’Argelers i Banyuls, a més d’uns quants alous al Vallespir i a Besalú. Entre els cavallers que posseïen alous en feu de l’abadia de Sant Quirze hi ha Guillem Ramon, que hi és anomenat vescomte “castri Birtini”, un esment primerenc del vescomtat de Rocabertí, i altres notícies del personatge l’anomenen vescomte de Verges o de Peralada. També hi figura Dalmau Berenguer, el qual es podria identificar amb el germà i successor de l’anterior. També s'identifiquen entre els feudataris de l’abadia els comtes Hug II d’Empúries (1035-1116) i Guislabert II de Rosselló (?-1102), Pere Ramon de Canet, i el vescomte de Tatzó, entre d’altres cavallers.
L’octubre de l’any 1091 l’abat Pere i els seus monjos, assistiren, junt amb altres nombroses dignitats eclesiàstiques i civils, al judici que es va celebrar celebrat a l’església de Santa Maria de Castelló per resoldre un litigi entre els monestirs de Banyoles i de Sant Pere de Rodes sobre el domini de quatre esglésies del pagus de Peralada.

Església de Santa Maria de Colera

Església de Santa Maria de Colera - (Ampliar)

La de l'any 935 no va ser l'única consagració de Sant Quirze; s'en documenta una altra l'octubre del 1123 als mateixos sants del monestir, i també de l'església de Sant Maria, aquesta vegada a mans del bisbe Berenguer Dalmau de Girona (1114-1146), en presència d'Arnau, bisbe de Carcassona, de Pere, bisbe d'Elna i de molts altres personatges, tant laics com religiosos. En aquesta cerimònia es consagrà l’església: “que sita est in pago Petralatensi in honore sancti Cirici et sancti Andree sanctique Benedicti”. En l’acta de consagració es fa referència específica a l’església de Santa Maria, situada davant les portes del monestir i es fa constar que l’altar d’aquest temple és traslladat a l’església de Sant Quirze on es procedeix a consagrar-lo: “Altare quoque sancte Marie quod fundatum fuerit in ecclesiola ante ianuas ipsius monasterii in ecclesiam sancti Cirici translutimus et in honorem sancte Marie consecravimus”.
Aquest és un període d'ampliació dels territoris del monestir en direcció nord. Al segle XIII es consoliden els seus drets jurisdiccionals amb diverses butlles papals, compres de terres, etc. Pere de Castellnou, bisbe de Girona (1258-79), aprovà i confirmà, el primer any del seu bisbat, les donacions, concessions, laudacions, aprovacions i confirmacions fetes al monestir de”Sancti Cirici de Colera”, que era regit aleshores per l’abat Pere. Malgrat això, també va ser objectiu militar; la campanya de Felip l'Ardit (1285) (3), i també va ser envaït per tropes de Jaume de Mallorca (1288) amb un fort contingent de tropes franceses que s’agruparen al monestir, tal com expliquen els "Gesta Comitum Barcinonensium". Durant aquests esdeveniments, el monestir era regit per l’abat Ramon de Bianya, el qual, per la seva làpida sepulcral, sabem que va morir el mes de novembre de 1296.

Casa de l'abat. Al fons, l'església de Sant Quirze

Casa de l'abat. Al fons, l'església de Sant Quirze - (Ampliar)

A partir del segle XV es documenten les primeres notícies de la progressiva devallada del monestir, que començà a caure en decadència pel nomenament d'abats comendataris que, al no residir al monestir, no feien complir la disciplina. D’altra banda, la degradació de la vida religiosa era acompanyada d'una ruïna material. El 1441 es feia constar que el claustre mostrava un estat lamentable en diversos llocs. Aquest estat de coses arribà fins al punt que, el 1592, a petició de Felip II de Castella, el papa Climent VIII ordenà l’agregació del monestir de Sant Quirze de Colera al de Sant Pere de Besalú, el que comportà l’extinció de la comunitat de Sant Quirze, ja molt minvada.
El 1690 es documenta l'estat ruïnós del complex monàstic. Amb la desamortització de 1835 el general liberal empordanès Ramon de Nouvilas i Ràfols va comprar la propietat i va tancar l'església al culte. A l’antic monestir s’hi instal·laren uns masovers que menaren les terres i utilitzaren les esglésies de Sant Quirze i Santa Maria i les dependències com a estables, pallisses i magatzems. Més tard, amb l'abandonament dels masovers, l'indret va estar habitat intermitentment.

Detall constructiu del monestir de Sant Quirze

Detall constructiu del monestir de Sant Quirze - (Ampliar)

El 1931 va ser declarat "Monument Historicoartístic Nacional", encara que hi continuaren vivent els masovers, fins a l'any 1979, quan començaren diverses campanyes de restauració i d'excavació que han posat al descobert unes pintures romàniques del segle XII a l'absidiola sud de l'església, i també les restes d'una tercera església o cel·la, la més primitiva, envoltada de tombes antropomòrfiques. Entre 1983 i 1984 es va dur a terme una altra intervenció en la que es va es varen aixecar plànols, es va bastir una escala d'entrada i es va consolidar parcialment l'edifici annex de l'antiga masoveria.
El mateix any es començaren les negociacions amb la família Fina de Nouvilas, descendents del general, que cediren el conjunt a l'ajuntament de Rabós el 1994 per la quantitat simbòlica de 1.000 pessetes, consistori que va crear el Patronat Municipal de Sant Quirze de Colera, amb representació de diferents institucions, que té per objectiu promoure'n la recuperació, l'estudi i la difusió.
El 1993 va ser emparat per la llei del Patrimoni Cultural català com a Bé Cultural d'Interès Nacional. El 1995 s'encarregà un projecte general a Joan Falgueras i Font, i els anys 2004-2005 es realitzaren diferents excavacions i també s'arranjà el camí que va de Rabós a Colera. Entre els anys 2009-2012 es duen a terme unes excavacions a l'església de Santa Maria, tant a l’interior com en l’exterior, que varen descobrir una sèrie de sepultures retallades sobre la roca, de fossa simple, antropomorfes i alguna amb laterals de lloses. Algunes sepultures, en part, estaven sota els murs, la qual cosa indica que l’origen de la necròpoli és anterior a l'església, entre els segles IX-X o anteriors.

Església de Santa Maria de Colera. Al fons, Sant Quirze

Església de Santa Maria de Colera. Al fons, Sant Quirze - (Ampliar)

El conjunt monumental. L'església de Sant Quirze té una planta basilical de tres naus, amb transsepte i tres absis semicirculars, orientats a llevant. La nau central i el creuer estan coberts amb volta de canó, mentre que les naus laterals i els absis presenten voltes de quart d'esfera. L'absis central, de mida més gran que les absidioles laterals, també presenta arcuacions llombardes a l'interior del temple i s'obre a la nau mitjançant un doble arc de mig punt en gradació, amb les impostes bisellades, que també es repeteix a l'absidiola de nord. La de sud presenta un arc rebaixat, modificat tardanament.
Entre l'absis central i l'absidiola meridional s'hi va bastir posteriorment una capella de planta rectangular, coberta amb volta apuntada i oberta al transsepte mitjançant un arc també apuntat. Les naus són separades per pilars cruciformes als que s'adossen les pilastres que sostenen els arcs torals i formers. Els arcs interns del temple són de mig punt.
Cada absis presenta una finestra de doble esqueixada i arcs de mig punt. N'hi ha dues més de les mateixes característiques situades al creuer, una al mur de sud i l'altra a l'extrem nord-oest de l'estructura. A la part superior de la nau central, damunt de l'absis, hi ha una finestra circular adovellada.

Conjunt monàstic de Sant Quirze de Colera

Conjunt monàstic de Sant Quirze de Colera - (Ampliar)

El temple té tres portes d'accés, tot i que les de nord i oest estan actualment tapiades. La porta situada al mur de sud, actual accés a l'interior, és d'arc de mig punt adovellat, amb els brancals fets de carreus desbastats. La porta ubicada al frontis, a la banda oest, està formada per dos arcs de mig punt en gradació, amb una llinda ampla i el timpà omplert amb carreus escairats. Damunt seu hi ha una finestra de grans dimensions de doble esqueixada i arcs de mig punt. A banda i banda hi ha dues finestres de les mateixes característiques, de mida més petita.
La façana està rematada per un campanar d'espadanya format per quatre grans pilastres sense cloure, més el basament de dues més. Exteriorment, la capçalera triabsidal és l'única part de l'edifici que presenta decoració llombarda. La construcció està bastida amb pedres poc treballades de mida mitjana, disposades en filades. Als murs de nord i sud, l'aparell combina la tècnica de l'opus spicatum amb petits carreus alineats sense espiga. Davant de la façana principal, i adossades al costat sud del creuer, hi ha restes del primitiu temple preromànic, que consisteixen en unes escales de pedra i la primera crugia del temple primitiu, així com vestigis del basament d'un absis al costat de l'actual absidiola de sud.

Entorn del conjunt monàstic de Sant Quirze

Entorn del conjunt monàstic de Sant Quirze - (Ampliar)

Les restes del claustre del monestir estan ubicades a la banda sud de la basílica. Adossades a l'extrem de ponent del mur sud del temple hi ha restes d'una de les dependències monàstiques i, disposat en paral·lel a la part restant del mur, hi ha el fragment d'una de les galeries del claustre. Està format per dues arcades dobles de mig punt adovellades, separades per un gran pilar carreuat i recolzades en columnes i grans capitells. A la banda de llevant del pati del claustre hi ha un fragment de mur amb aparell d'opus spicatum que pertanyia a un dels edificis de les antigues dependències.
Tancant el claustre per la banda oest hi ha un edifici de planta rectangular allargada, amb la coberta d'un sol vessant a l'exterior i volta apuntada seguida internament, tot i que a la part sud està esfondrada. La façana principal està orientada al claustre i presenta dos portals d'accés de mig punt adovellat a la planta baixa i, al pis, dues finestres de doble esqueixada i arcs de mig punt. La façana oest, encarada a l'exterior del recinte, presenta el basament atalussat i una llarga espitllera. Al pis hi ha dues finestres de doble biaix, pràcticament idèntiques a les de la façana principal. L'aparell és bastit amb carreus de pedra ben desbastats, disposats en filades. La construcció ha estat identificada com el refetor o bé el dormitori del monestir.

Capçalera de l'església de Sant Quirze de Colera

Capçalera de l'església de Sant Quirze de Colera - (Ampliar)

A la banda sud hi ha un altre edifici que s'ha identificat com la casa de l'abat, i que va servir de masia durant l'estada de masovers. És rectangular, format per tres cossos adossats amb les cobertes d'un sol vessant i distribuït en planta baixa i pis. La façana principal, orientada a l'exterior del recinte, presenta un portal de mig punt adovellat i una llarga espitllera a la planta baixa, i al pis hi ha dues finestres rectangulars emmarcades en carreus i amb les llindes biforades amb arquets trilobulats i les impostes motllurades. La banda nord de la construcció presenta una gran volta de mig punt bastida en pedra, a la planta baixa, i finestres reformades fetes amb maons al pis. A l'interior hi ha estances cobertes amb voltes de canó i restes de l'encanyissat i arcs torals adovellats, a la planta baixa. Es conserva un mur en opus spicatum de la construcció del segle X o anterior.
Darrere de l'absis de l'església hi ha les restes de les fortificacions que delimitaven el recinte. Des de l'extrem nord-est de la capçalera surt un tram de muralla que conserva diverses sageteres. Un altre tram de muralla estava disposat en paral·lel a l'anterior, a migdia, delimitant un recinte que comunicava els edificis del monestir amb la torre angular, situada a uns trenta metres a llevant. La torre és de planta quadrada i presenta diverses espitlleres i finestres disposades a diferent nivell. Actualment ha perdut la seva coberta. A la cantonada nord-oest de l'església, es localitzen restes d'un mur fortificat amb sageteres integrades al parament.

Monestir de Sant Quirze de Colera

Monestir de Sant Quirze de Colera - (Ampliar)

Les restes de l'edifici que ha estat identificat com l'hospital estan situades al nord-oest del conjunt monàstic, en una zona una mica elevada. Es tracta d'un edifici de planta rectangular, sense coberta i mig enrunat, bastit en pedra sense treballar i fragments de material constructiu, lligat amb abundant morter de calç. Encara hi ha un altre edifici aïllat situat al nord-est del monestir, que havia servit de corral.
L'església de Santa Maria de Colera està situada a pocs metres a ponent del monestir. El temple és d'una sola nau amb absis de planta semicircular, capçat a l'est. La nau presenta una volta apuntada i seguida, mentre que la de l'absis és ametllada. Aquest espai s'obre a la nau mitjançant dos arcs apuntats adovellats. Adossat al parament nord hi ha un basament sobresortit.
L'edifici està il·luminat mitjançant cinc finestres de doble esqueixada i arcs de mig punt, tres situades al mur sud, una al frontis i l'altra al fons de l'absis. La porta d'accés, situada al mur sud, està formada per dos arcs de mig punt en gradació, amb una gran llinda i timpà semicircular. La construcció és bastida amb carreus de pedra desbastats, disposats en filades regulars. En el decurs dels darrers anys s'han anat efectuant diverses tasques de consolidació i restauració de l'edifici.


Notes
(1) Analitzat el text, els anacronismes que serveixen per a titllar-lo d’apòcrif es concentren en una sola part de la declaració dels testimonis aportats pel monestir, juntament amb algunes de les signatures, i una frase que es considera dubtosa, si no una interpolació. La resta és tot versemblant, sense cap anacronisme i impossible de falsificar amb tanta precisió al segle XIII, atès que la data, els personatges i el lloc concorden, fins i tot el tipus d’aprisió, única i la més primitiva.
Per tant, segons l’esmentat document, sense les interpolacions, la fundació de Sant Quirze de Colera es va produir després del traspàs del domini sarraí de la ciutat de Girona l’any 785, quan una família, encapçalcada per dos germans, Libenci i Assenari, fundà un monestir, i amb els seus familiars i servents i altres homes que volien fer vida cenobítica o simplement disposar d’unes terres per treballar-les, aprisiaren les valls de l’Albera, on hi havia hagut el castell de Toló. Abans del 815 acudiren a la cort imperial i obtingueren un precepte de Carlemany. La declaració dels testimonis va ser el que van veure i escoltar en aquest document que els devia ser llegit, segons el qual l’emperador Carles donà el seu fisc a Libenci, abat; per tant, el monestir ja havia estat organitzat, i al seu germà Assenari, el castell de Toló, amb tota la terra, les muntanyes i les valls de Leocarcari, amb el pacte que a les valls fos erigit i edificat el monestir de Sant Quirze i Sant Andreu. De fet el monestir ja devia ser edificat, però, com succeïa en altres llocs, l’autoritat volgué passar per ser-ne la fundadora.
Després de passar més de quaranta anys de la primera fundació, la particular, l’abat Libenci i el seu germà Assenari, que tenien el monestir com a propietat particular, donaren els seus drets al monestir i als monjos que hi viurien, i segurament establiren que un membre de la seva família en fos l’abat. Per això el monjo Guiemund, fill d’Assenari, va ser el representant del monestir, malgrat no titular-se abat, quan hagué de defensar els drets del monestir enfront les interferències del comte Alaric.
El comte Alaric d’Empúries, comte també del Rosselló, el 842 va perdre un plet amb el bisbe Gotmar de Girona, perquè conculcava els drets episcopals als comtats d’Empúries i Peralada. De manera semblant, el comte Alaric no volgué reconèixer els drets del monestir de Sant Quirze, atès que els monjos no podien, com el bisbe gironí, presentar cap document reial que avalés els seus drets, però sí que en tots dos casos presentaren testimonis que havien vist aquests documents, i el comte hagué de renunciar a les seves pretensions.
El monjo Guiemund, fill d’un dels fundadors de Sant Quirze de Colera, anà el 844 a Sant Serni de Tolosa, on el rei Carles el Calb es trobava assetjant la ciutat on s’havia refugiat el rebel Bernat de Septimània. Hi acudiren molts abats catalans a recaptar preceptes per als seus monestirs: l’abat Dòmnul per al monestir de Sant Pere d’Albanyà, l’abat Adulf per al de les Escaules, l’abat Guilera per al d’Amer, l’abat Elies per al de Banyoles, entre d'altres. També s’hi trobava present el bisbe Gotmar de Girona, que va ser un dels jutges del judici de Sant Quirze de Colera, el qual obtingué del rei Carles la confirmació d’un precepte de Carlemany i del seu fill, Lluís el Pietós.
El monjo Guiemund, argumentà que el seu pare i el seu oncle havien aprisiat el terme del castell de Toló, que després va ser anomenat Peralada, i que havia estat confirmat per un precepte de l’emperador Carles, la qual cosa negava el comte Alaric. A manca del document de l’emperador, que degueren perdre en alguna de les incursions sarraïnes pel pas de Girona i Barcelona al domini franc, i que ni el bisbe de Girona no el conservava, presentaren testimonis vàlids, que per separat declararen el mateix. Únicament que en presentar aquest document en un judici posterior, hi introduïren algunes interpolacions. La de la intervenció del rei Lluís el Pietós ho és clarament, així com algunes de les signatures.
Després d’aquest fet es produeix un lapse de més de vuitanta anys sense que es tingui notícies documentals del monestir, que podria ser motivat per una devastació del territori, potser la de Guillem, fill de Bernat de Septimània, qui, des de l’any 847 al 850, devastà els territoris dels comtats de Barcelona, Girona i Empúries. A partir del 927 es torna a tenir referències del monestir, quan es documenta un abat anomenat Manuel, que protagonitzà l’inici d’un període d’engrandiment i prosperitat per al cenobi. Del mateix any són la donació d’una vinya al monestir de Sant Quirze de Colera i al seu abat Manuel i una altra escriptura traslladada l’any següent. Basat en l'article d'Antoni Balcells i Corominas a la Gran Enciclopèdia Catalana. - (Tornar al text)

(2) Anomenat avui de Banyuls, abans d’Espills, actual topònim Pils (Spilius), i a la vall de Freixe de l’actual terme municipal d’Espolla, que cal no confondre amb la vall de Freixe del document de Gausbert del 931 que s’identifica amb l’actual vall de Garbet, oberta al mar, al terme de Colera. - (Tornar al text)

(3) El rei francès, que es diposava a penetrar a Catalunya amb el seu exèrcit pel coll de Panissars, va ser aturat per les tropes del rei Pere el Gran. Davant aquesta dificultat els francesos cercaren un altre pas que, segons la narració Ramon Muntaner, va ser el coll de la Maçana, un indret poc vigilat. Sembla que l’entrada els va ser facilitada per un personatge que alguns textos contemporanis anomenen “el bord del Rosselló”; per contra, segons Bernat Desclot, va ser l’abat de Sant Pere de Rodes, mentre que Muntaner afirma que va ser el de Sant Andreu de Sureda.
El pas de l’exèrcit invasor pel coll de la Maçana fa suposar a d’altres autors que varen ser els monjos de Sant Quirze els qui facilitaren el pas als francesos. L’exèrcit acampà al costat del monestir i el rei Felip va decidir de romandre-hi vuit dies fins que totes les seves forces haguessin passat el coll i fins que el seu estol hagués ocupat el port de Roses, des d’on havia d’avituallar les tropes invasores. Quan el rei Pere amb l’infant Alfons, els comtes de Pallars i d’Urgell i els vescomtes de Cardona i de Rocabertí i altres eren a Peralada, reberen un missatge del monestir de Sant Quirze informant-los que el rei de França hi era amb tota la cavalleria. - (Tornar al text)


Bibliografia
"Sancti Cirici de Colera - Sant Quirze de Colera (Alt Empordà). Estudio preliminar del conjunto monástico, siglos VIII al XVI", G. Ripoll, E. Carrero i altres. 2017. Direcció General de Patrimoni Cultural, Generalitat de Catalunya.
"Sant Quirze de Colera entre els segles XII i XIV: d'edifici religiós a fortificació militar". B. Agustí, D. Codina, I. Lorés i altres. 1998. Annals de l'Institut d'Estudis Empordanesos, núm. 31.
"Sant Quirze de Colera: límits territorials". Albert Pibernat i López. 2004. Annals de l'Institut d'Estudis Empordanesos, núm. 37.

[Més imatges]


(Imatges base capçalera: Viquipèdia)


Edificis religiosos de l'Alt Empordà

Rabós

Escut de Rabós.

Mapa de Rabós

Situació del municipi de Rabós dins la comarca de l'Alt Empordà

Monestir de Sant Quirze de Colera

Monestir de Sant Quirze de Colera - (Ampliar)

Detall d’un dels murs en el qual és visible l’aparell, en el qual sovinteja l’opus spicatum

Detall d’un dels murs en el qual és visible l’aparell, en el qual sovinteja l’opus spicatum - (Ampliar)

Sant Quirze de Colera. 1989

Sant Quirze de Colera. 1989. Joan Segur. CRDI - Ajuntament de Girona - (Ampliar)

Escut del vescomtat de Rocabertí

Escut del vescomtat de Rocabertí.

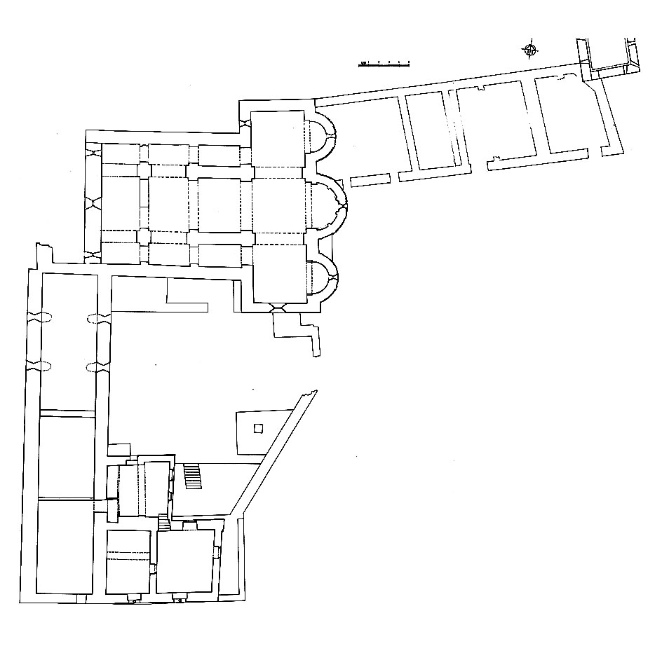
Plànol del conjunt monàstic conservat a nivell de la planta baixa, amb l’església, el pati del claustre i les dependències que l’envoltaven

Plànol del conjunt monàstic conservat a nivell de la planta baixa, amb l’església, el pati del claustre i les dependències que l’envoltaven. Patrimoni Arquitectònic. Generalitat de Catalunya - (Ampliar)

Plànol del conjunt monàstic conservat a nivell del primer pis

Plànol del conjunt monàstic conservat a nivell del primer pis. Patrimoni Arquitectònic. Generalitat de Catalunya - (Ampliar)

Jaume II de Mallorca (1243-1311) en un diner

Jaume II de Mallorca (1243-1311) en un diner. Viquipèdia - (Ampliar)

Capitell del claustre del segle XII

Capitell del claustre del segle XII. Generalitat de Catalunya - (Ampliar)

Galeria del claustre

Galeria del claustre. Font: monestirs.cat gentilesa de l'autor - (Ampliar)

El papa Climent VIII (1536-1605)

El papa Climent VIII (1536-1605). Viquipèdia. - (Ampliar)

Interior de l'església

Interior de l'església. Font: monestirs.cat gentilesa de l'autor - (Ampliar)

Torre de defensa del monestir de Sant Quirze de Colera

Torre de defensa del monestir de Sant Quirze de Colera - (Ampliar)

Façana del monestir de Sant Quirze de Colera

Façana del monestir de Sant Quirze de Colera - (Ampliar)

Ramon de Nouvilas i Ràfols (1812-1880)

Ramon de Nouvilas i Ràfols (1812-1880). Viquipèdia - (Ampliar)

Monestir de Sant Quirze de Colera

Monestir de Sant Quirze de Colera - (Ampliar)

Entorn del monestir de Sant Quirze de Colera

Entorn del monestir de Sant Quirze de Colera - (Ampliar)

Entorn del monestir de Sant Quirze de Colera

Entorn del monestir de Sant Quirze de Colera - (Ampliar)

Tomba antropomòrfica del monestir de Sant Quirze de Colera

Tomba antropomòrfica del monestir de Sant Quirze de Colera. Viquipèdia - (Ampliar)

Refetor del monestir de Sant Quirze de Colera

Refetor del monestir de Sant Quirze de Colera. Viquipèdia - (Ampliar)

Nau lateral sud del monestir de Sant Quirze de Colera

Nau lateral sud del monestir de Sant Quirze de Colera. Viquipèdia - (Ampliar)

Pintures romàniques a l'absidiola del monestir de Sant Quirze de Colera

Pintures romàniques a l'absidiola sud del monestir de Sant Quirze de Colera. Viquipèdia - (Ampliar)

Portal del claustre del monestir de Sant Quirze de Colera

Portal del claustre del monestir de Sant Quirze de Colera. Viquipèdia - (Ampliar)

Finestra de l'església de Santa Maria de Colera

Finestra de l'església de Santa Maria de Colera - (Ampliar)

Façana del monestir de Sant Quirze de Colera

Façana del monestir de Sant Quirze de Colera - (Ampliar)

Absis de l'església de Santa Maria de Colera

Absis de l'església de Santa Maria de Colera - (Ampliar)

CONTACTE ----Avís legal ----Aviso legal ----Legal notice © Fèlix Xunclà/Assumpció Parés